Sie sind hier: >>> Mietimmobilien >>> Angebote
4 Zi-Wohnung Toplage in KA-Weiherfeld
4 - Zimmerwohnung KA - Weiherfeld! Top Lage an der Alb! 4 - Zimmerwohnung mit Sonnen - Loggia und Garage
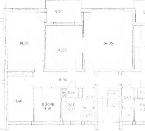
Die grosszügige 4 - Zimmerwohnung befindet sich
im Erdgeschoss eines 6 - Parteienhauses im schönen Karlsruher
Stadtteil Weiherfeld in TOP Lage mit Blick auf die Alb und das
Albgrün. Die Wohnung verfügt über 4 Zimmer, Flur, separates
Tageslicht - WC, neuwertiges Tageslichtbad, Abstellraum und
Küche sowie über eine gut möblierbare Sonnen - Loggia mit
Markise, nach Südwest orientiert. Im Untergeschoss befinden
sich ein Wasch - und Trockenraum und ein Fahrradabstellraum
als gemeinschaftlich genutzte Flächen sowie ein zur Wohnung
gehörender Kellerabstellraum mit einer Grösse von ca. 11.40
m⊃2;.
Kosten
Kaltmiete: 850,00 EUR
Nebenkosten: + 200,00 EUR Heizkosten: in Nebenkosten
enthalten
Gesamtmiete: = 1.050,00 EUR
Kaution oder Genossenschaftsanteile: 3 Monatskaltmieten
Miete für Garage/Stellplatz: 50,00 EUR
Provision für Mieter: 2,38 KM ( inkl. MWST )
Die Maklercourtage ist fällig und zahlbar bei Abschluss des
Mietvertrages.
Ausstattung
- wärmegedämmte Kellerdecke
- weisse Kunststofffenster mit Rollläden
- neuwert. PVC Böden in Parkettoptik
- Warmwasseraufbereitung über einen neuwertigen
Elektroboiler
- weisser Einbauschrank im Zimmer zur Strassenseite
- Bad und separates WC neuwertig - Rauhfasertapeten
- Treppenhaus und Gehwegreinigung sind in den Nebenkosten
bereits enthalten
Wohnungstyp: Erdgeschosswohnung
Zimmer: 4,00
Wohnfläche ca.: 95,00 m⊃2;
Nutzfläche ca.: 11,40 m⊃2;
Schlafzimmer: 2
Badezimmer: 1
Bezugsfrei ab: 01.07.2014
Haustiere: Nein
Garage/ Stellplatz: Garage
Anzahl Garage/ Stellplatz: 1
Balkon/ Terrasse: Ja
Keller: Ja
Gäste-WC: Ja
Baujahr: 1960
Letzte Modernisierung/ Sanierung: 2013
Objektzustand: Gepflegt
Qualität der Ausstattung: Normal
Heizungsart: Zentralheizung
Wesentlicher Energieträger: Öl
Energieausweistyp: Verbrauchsausweis

4 - Zimmerwohnung KA - Weiherfeld! Top Lage an der Alb! 4 - Zimmerwohnung mit Sonnen - Loggia und Garage

Grundriss

